
【GT-C1672SAW-L BL】 《TKF》 ノーリツ ガスふろ給湯器 16号 アルコーブ設置型 エコジョーズ オート ωα0
¥97,845
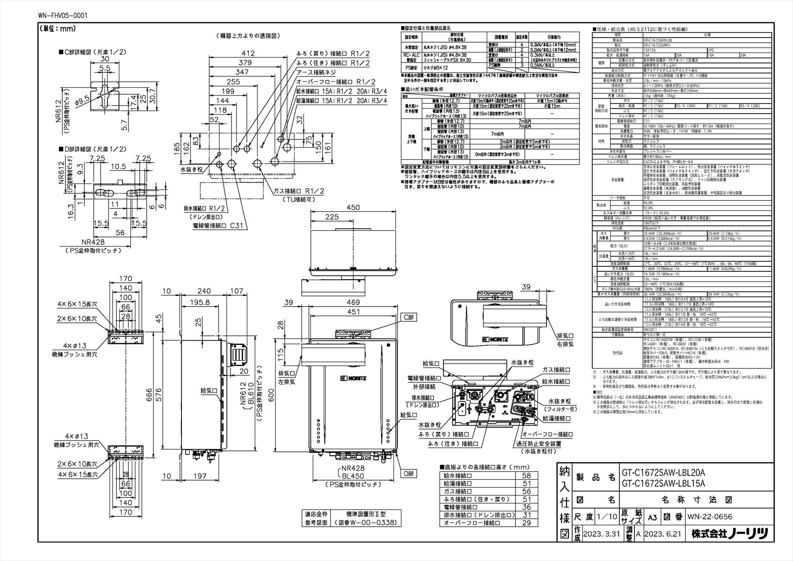
メーカー希望小売価格はメーカーカタログに基づいて掲載しています基本スペックシリーズ名GTC**72シリーズ(エコジョーズ)機能バリエーションふろ給湯器(設置フリー形)自動機能オート号数0.416号 (2.4号未満は間欠燃焼)追いだき能力9980kcal/h (入力)設置形態PSアルコーブ排気方法アルコーブ排気 (PS)外形寸法H600mm×W469mm×D240mm外装カラー鋼板(耐塩害仕様) (耐重塩害仕様は特注要)色プレシャスシルバー質量27kg満水時:29kg